Wohnungssuche

Naabstr. 22, 3 L - Gut geschnittene 3 Zimmer Wohnung mit Balkon. WBS erforderlich!!

Gesamtmiete
641,58 €
Wohnfläche
66,03 m²
Zimmer
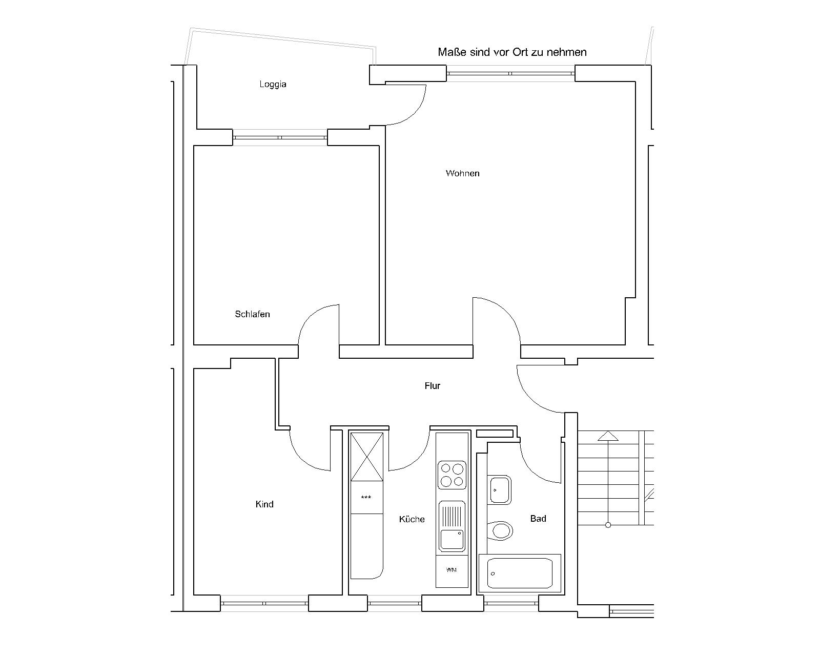
3

Donauviertel
Naabstr. 22, 38120 Braunschweig


Wohnung Anfragen
  • Balkon/Terrasse
  • Badewanne

Informationen

Etage 3
Wohnfläche 66,03 m²
Baujahr 1964
Primärer Energieträger Gas
Art des Energieausweises Energieverbrauchsausweis
Energieverbrauchskennwert kWh/(m²*a) 119,00
Effizienzklasse D
Bezugsfrei nach Absprache

Kosten

Grundmiete 389,58 €
Vorauszahlung Heizung/WW 86,00 €
Vorauszahlung Betriebskosten 166,00 €
Gesamtmiete 641,58 €
* = in drei Ratenzahlungen möglich

Objektbeschreibung

Lage

Wer es sonnig mag, wird das Donauviertel lieben! Großzügig angelegte Grünflächen mit abwechslungsreicher Bepflanzung, Spielplätze und nahe gelegene Waldstücke verschaffen unzählige Gelegenheiten für Aktivitäten an der frischen Luft. Das besondere Plus der in den 1960er Jahren errichteten Gebäude: Die modernisierten Wohnungen sind überwiegend mit Westbalkonen ausgestattet!

Sonnig und grün - das beschreibt die Wohnqualität im Donauviertel am besten! Die viergeschossigen Häuser mit 2-, 3- und 4-Zimmer-Wohnungen verfügen nicht nur über einen nach Süden ausgerichteten Balkon mit Aussicht ins Grüne, sondern auch über moderne Bäder mit viel Komfort. Menschen mit eingeschränkter Mobilität fühlen sich im Donauviertel besonders wohl. Viele Gebäude ermöglichen einen barrierefreien Zugang durch Rampenanlagen. Ein weiteres Plus: Auch die Gästewohnungen der Nibelungen sind nur ein paar Gehminuten entfernt!

Die täglichen Besorgungen im Supermarkt, der Apotheke, der Drogerie und der Bäckerei können bequem zu Fuß erledigt werden. Besonders für junge Familien praktisch: Kindergärten und Kitas, drei Grundschulen, eine Waldorfschule und auch eine Gesamtschule in der Nähe sorgen für kurze Schulwege! Das Angebot vor Ort ist Dank diverse Sportvereine, Fitnesscenter, Jugendtreff, Indoor-Minigolf und Ponyhof besonders abwechslungsreich. Für Spaziergänger, Läufer und Radfahrer ist die Lage am Stadtrand günstig: Von der Haustür bis ins grüne Umland dauert es nur wenige Minuten! Auch viele Kleingartenvereine befinden sich in direkter Umgebung.

Pendler sind über die nahe gelegene Auffahrt zur A 391 fix auf der A 39 und der A2 in Richtung Hannover, Salzgitter oder Wolfsburg unterwegs. Durch die gute Anbindung an den öffentlichen Nahverkehr ist die Innenstadt innerhalb weniger Minuten erreichbar.

Lernen Sie das ganze Quartier kennen

Donauviertel

Donauviertel

OFFEN. INDIVIDUELL. FAMILIENFREUNDLICH.

Sie verwenden einen veralteten Browser
Dies stellt ein Sicherheitsrisiko für Ihr System dar und kann zu Darstellungsfehlern auf dieser Website führen.

Bitte installieren Sie einen aktuellen Browser.